Atelier Ilex, Büroausbau ‚Square One‘ Z1N1 Root, LU

Büroausbau ‚Square One‘ Z1N1 Root, LU

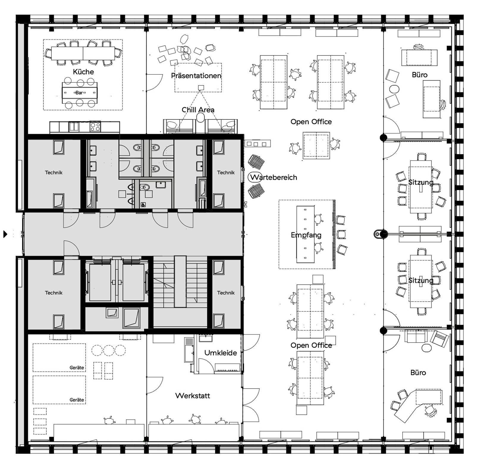
Die Büroräumlichkeiten im D4 wurden im Rohbau übernommen und mussten ausgebaut werden. Das Büro- und Einrichtungskonzept wurde durch Ruben Wellinger (rubnz.de) in Abstimmung mit der Bauherrschaft erarbeitet, und vor Ort umgesetzt. Die Planung, Baueingabe sowie die Bauleitung wurde von ilex Architekten übernommen.

Erstellungsjahr: 2021
Projektart: Mieterausbau
Fläche: 440m^2
Bauherrschaft: Privat
Leistungen: Bauberatung, Baueingaben, Bauleitung, Planung

Atelier Ilex, Büroausbau ‚Square One‘ Z1N1 Root, LU

Im Ausbaukonzept spielten wir mit den harten Betonelementen, welche mit den natürlichen Eichenakzenten ein angenehmes und modernes Raumklima erzeugen. Viele Installationen wie die Lüftungsanlage wurden unverblendet an der Decke geführt und prägen so den industriellen Charakter.

Entstanden ist ein grosszügiges und modernes Büro, welches kaum Wünsche offen lässt und auch im Bereich der Nachhaltigkeit überzeugt – form follows function and sustainibility.

«Nachhaltig, kostenoptimiert und benutzerfreundlich. »

Peter E. Braun
CEO