Atelier Ilex, Agrocity Furttal, ZH

Agrocity Furttal, ZH

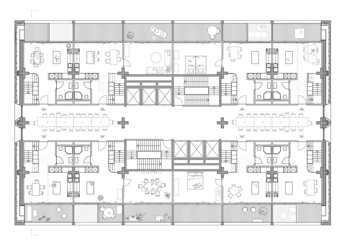
Umnutzung der ehemaligen Jelmoli Vertriebszentrale

Das Projekt ,Agrocity‘ kritisiert die heutige Landwirtschaft in der Schweiz und versucht eine Alternative aufzuzeigen, in welche Richtung die Entwicklung gehen könnte. Weg von einer flächenintensiven horizontalen Bewirtschaftung der Böden hin zu einem vertikalen…

Erstellungsjahr: 2018
Projektart: Studie
Fläche: 2'509'722m²
Bauherrschaft: Öffentlich
Leistungen: Planung

Atelier Ilex, Agrocity Furttal, ZH

Schweizer Agrarpolitik

Rascher Wandel

Die Agrarpolitik hat sich in den letzten fünfzehn Jahren stark verändert. In der Nachkriegszeit bis zu Beginn der Neunzigerjahre war die Selbstversorgung mit Nahrungsmitteln das erklärte Ziel der Schweizer Agrarpolitik. Mit der modernen Agrarpolitik, die im Jahr 1992 eingeläutet wurde, kamen weitere wichtige Funktionen dazu.

Die Ziele der modernen Schweizer Agrarpolitik lassen sich mit einem Satz beschreiben: Die inländische Landwirtschaft muss sich auf den Markt und auf die Konsumenten ausrichten, sie muss zu einer sicheren Versorgung der Bevölkerung beitragen, wichtige Funktionen in Umweltschutz, Ökologie und Landschaftspflege übernehmen und die Lebensqualität im ländlichen Raum bewahren. Gefragt sind also Wettbewerbsfähigkeit, Nachhaltigkeit und Multifunktionalität.

Die ‘vorbildliche’ Schweiz – Spitzenreiter in Forschung, Entwicklung und Lebensqualität. Doch nicht in allen Bereichen zeigt sich die Innovationskraft der Schweiz. Im Agrarsektor hinkt sie massiv hinterher. Während der Schweizer Bauer noch seine Äcker pflügt, wird anderswo auf industrielle Produktionsmethoden wie dem ‘vertical farming’ oder ‘indoor farming’ gesetzt. Will die Schweiz unabhängig bleiben, braucht es ein Umdenken in der Landwirtschaft.

Mit der steigenden Bevölkerungszahl ist es längst nicht mehr möglich, die Bevölkerung mit der inländischen Agrarproduktion zu ernähren. Gut die Hälfte unserer Nahrungsmittel wird importiert. Werden unsere Böden weiterhin so verschwenderisch bewirtschaftet drohen uns nicht nur grosse Umweltschäden (durch Pestizide, Dünger etc.) sondern auch immer teuere Produkte.

Die Landwirtschaft braucht zu viel Fläche.

Die Landwirtschafts- und Alpwirtschaftsflächen machen zusammen mehr als einen Drittel der Gesamtfläche der Schweiz aus. Um für die Zukunft gerüstet zu sein, muss auf weniger Fläche mehr produziert werden. Die einzige Möglichkeit, dieses Ziel zu erreichen birgt die vertikale Stapelung der Anbauflächen.

Die Landwirtschaft braucht zu viel Wasser.

Die Landwirtschaft in der Schweiz verbraucht jährlich etwas mehr als 411’000’000 m3 Wasser, was beinahe dem Gesamtverbrauch aller schweizer Haushalte gleichkommt. In Anbetracht der jetzigen Klimaerwärmung und in Beibezug des trockenen Sommers 2018, müssen wir davon ausgehen, dass auch unser Trinkwasser bald einmal knapp werden wird, weshalb solch horende Verbraucher eingedämmt werden müssen. Mit der Umstellung auf hydroponic Kulturen könnte man bis zu 90% des derzeitigen Wasserverbrauchs einsparen und bedenkt man weitere Anbaumethoden wie ‘aeroponic’, so könnte man nochmals massiv Einsparungen machen.

Die Landwirtschaft braucht zu viel Steuergelder.

Jährlich werden 3.7 Milliarden Schweizer Franken in den Landwirtschaftssektor gesteckt. Steuergelder, welche sinnvoller genutzt werden könnten. Die Erforschung neuer Anbautechniken, also der industriellen Produktion, sollte im Fokus stehen, nur so kann der bevorstehenden Lebensmittelknappheit entgegen gewirkt werden. Die Importzölle und Subventionen senken die Innovation im Agrarsektor Die Schweizer Landwirtschaft ist nicht fähig, mit den ausländischen Produkten zu konkurrenzieren, weswegen in der Schweiz hohe Importzölle auf ausländische Agrarprodukte zu verrichten sind. Dieser Umstand zusammen mit den Subventionen hemmt die Innovation im Agrarsektor.

Atelier Ilex, Agrocity Furttal, ZH

Atelier Ilex, Agrocity Furttal, ZH